Описание проекта:

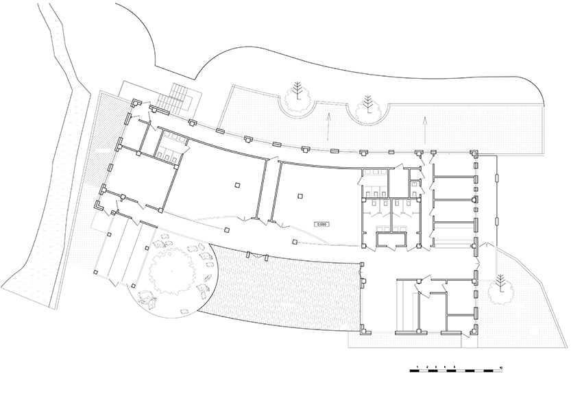
Объект разработан для досуга детей в курорт-отеле “Лесная сказка”. Предусматривает разнообразные развлечения для детей как в объеме здания, так и на прилегающей территории.

год проектирования: 2016

Краткие характеристики:

Место расположения: Горный  курорт-отель "Лесная Сказка", Талгарский район, нижняя часть ущелья "Ой-карагай".

S застройки - 612,1 м2

S общая - 539,0 м2

Этажность - 1 этаж

Детали проекта:

Категория:

ОБЩЕСТВЕННЫЕ ЗДАНИЯ
КОММЕРЧЕСКИЕ ОБЪЕКТЫ

Клиент:

Горный курорт-отель "Лесная Сказка"

Дата проекта:

15/03/2016