Описание проекта:

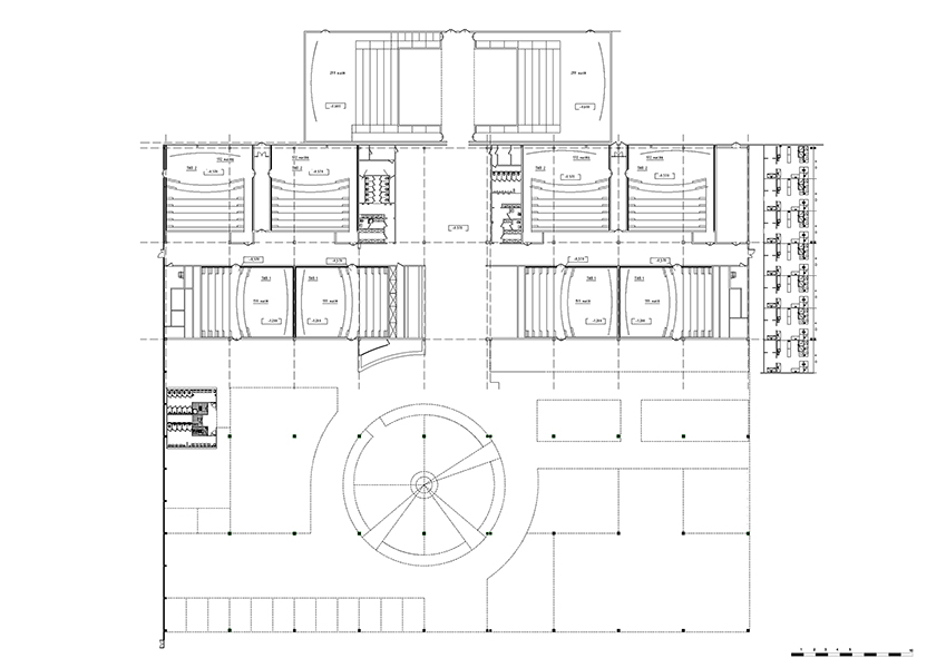
Реконструкция существующих производственных зданий под функцию торгового центра. Целью проекта является создание современного кинотеатра в торгово-развлекательном центре.

год проектирования: 2017

Краткие характеристики:

Место расположения: г. Алматы, Ауэзовский район, по ул. Кабдолова

S  участка - 11,9816 Га

S застройки - 7,815 Га

общая S здания - 79888.5 м2

Этажность - 1 этаж

Детали проекта:

Категория:

ОБЩЕСТВЕННЫЕ ЗДАНИЯ
КОММЕРЧЕСКИЕ ОБЪЕКТЫ

Клиент:

ТЦ «Grand Park»

Дата проекта:

15/03/2017