Описание проекта:

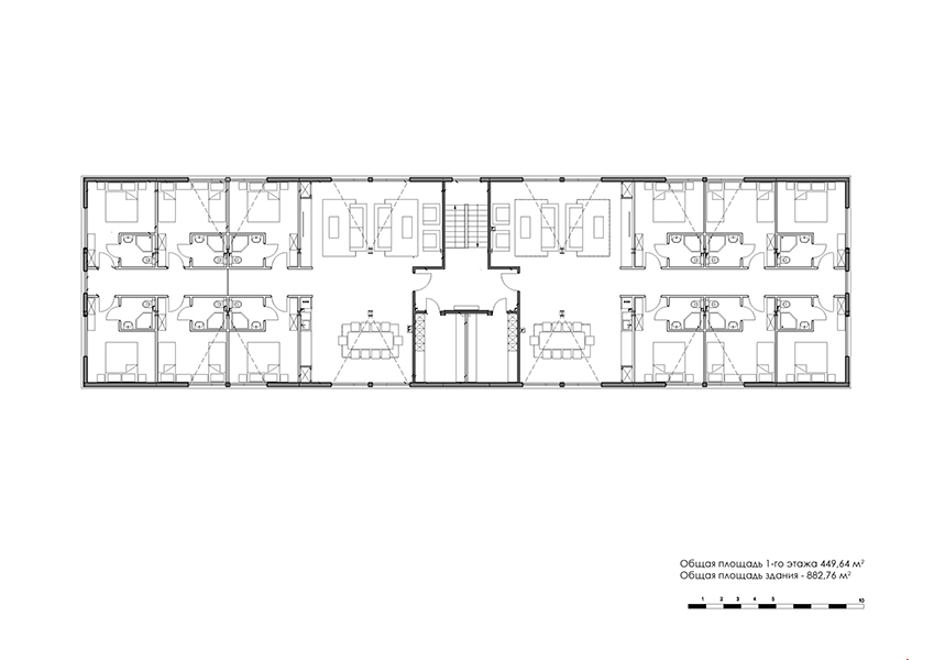
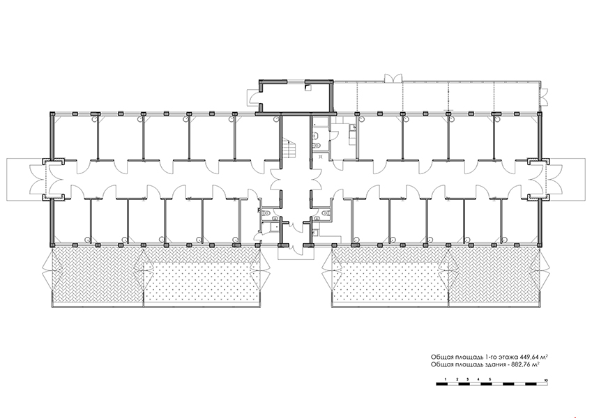
Конный центр включает в себя три здания, расположенные с учетом рельефа. Каждое предусматривает содержание 16 лошадей. На втором этаже расположены помещения, предназначенные для отдыха посетителей, прибывших в центр на более продолжительный срок (с ночевкой).

год проектирования: 2018

год постройки: 2018-2019

Краткие характеристики:

Место расположения: в составе рекреационной зоны, располагаемой на территории Алматинской обл, Талгарский р-н, нижняя часть ущелья Ой Карагай

S застройки - 481,85 м2

S общая - 882,76 м2

Этажность - 2 этажа

Детали проекта:

Категория:

ОБЩЕСТВЕННЫЕ ЗДАНИЯ
КОММЕРЧЕСКИЕ ОБЪЕКТЫ

Дата проекта:

15/03/2018