Описание проекта:

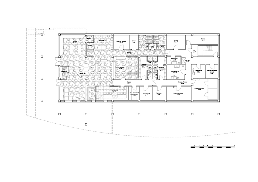
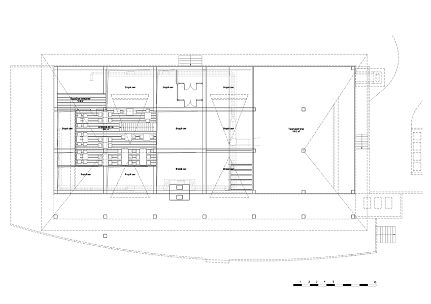
Проектируемый ресторан представляет собой прямоугольное в плане одноэтажное здание размером 18 м х 36 м с цокольным этажом и большой террасой для организации посадочных мест на открытом воздухе с видом на горы.

год проектирования: 2018

год постройки: 2018

Краткие характеристики:

Место расположения: в составе рекреационной зоны, располагаемой на территории Алматинской обл, Талгарский р-н, нижняя часть ущелья Ой Карагай

S застройки - 977,53 м2

S общая - 1061,42 м2

Этажность - 2 этажа

Детали проекта:

Категория:

ОБЩЕСТВЕННЫЕ ЗДАНИЯ
КОММЕРЧЕСКИЕ ОБЪЕКТЫ

Дата проекта:

15/03/2018