Описание проекта:

Проект выполнен в соответствии с последними архитектурно-градостроительными нормами, отвечает требованиям пожаробезопасности. Многофункциональный торговый центр  выполнен из современных материалов, при проектировании также учтены  вопросы  энергосбережения, экономии городских ресурсов.

год проектирования: 2018

Краткие характеристики:

Место расположения: г.Талдыкорган,Молодежный р-н, ул. Кунаева - ул. Балапанова

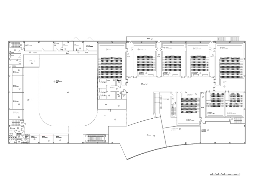
S застройки - 5638,8 м2

S здания - 13804,1 м2

Этажность - 3 этажа

Детали проекта:

Категория:

ОБЩЕСТВЕННЫЕ ЗДАНИЯ
КОММЕРЧЕСКИЕ ОБЪЕКТЫ

Дата проекта:

15/03/2018